Scaftech  
iScaf Scaffold Software

  Other iScaf Examples:

  - Simple Wall
  - Simple Wall with Ladder
  - Varying Heights
  - Around a House
  - House with Mesh Guards
  - Vessel Drawing
  - Commercial Building
  - Frame Scaffolding
  - Tank
  - Temporary Seating
  - Complex Scaffolding
  - Formwork / Shoring
  - iQuote

  - iScaf Main
  - iScaf FAQ
 

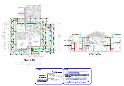
Simple Scaffold around a house with mesh guards

This example shows a simple house plan with customized hand rails.

Click to see PDF version

iScaf Scaffold Software


iScaf Scaffold Software

iScaf Scaffold Software

This drawing can also include your company logo and title block






Home | About Us | iScaf | iRent | iSite | News | Support | Links | Contact Us
Copyright © 1998-2010 Scaftech Pty Ltd